Az értékesítő:
Kratochwill Andrea
+36 20 967 9219

Eladó telek/földterület Mórahalom, 19 999 000 Ft, 700 Négyzetméter

19 999 000 Ft
telek/földterület, 700 Négyzetméter
Azonosító:
11578248
Értékesítés típusa:
eladó
Ingatlan típusa:
telek/földterület
Jelleg:
Belterület
Település:
Mórahalom
Telekterület:
700
Ár:
19 999 000 Ft
Telekterület típusa:
Négyzetméter
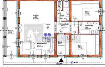
Építési telek építési engedéllyel és tervekkel eladó Mórahalmon! Eladó építési telek Mórahalmon, új parcellázású, modern, új építésű házak környezetében. A telekhez építési engedély és kiviteli terv is tartozik, így az építkezés akár azonnal folytatható! A tervek szerint: Földszintes, 110 m²-es téglaépítésű családi ház Nappali + amerikai konyha 2 hálószoba Fürdőszoba és külön WC Telek jellemzői: Méret: 700 m² Közművek a telken belül Kerítéssel körbekerített Betonalap elkészült Fúrt kút a telken Kiváló választás azoknak, akik szeretnék elkerülni a hosszas engedélyeztetési folyamatot, és kész tervekkel, azonnal folytatnák az építkezést. Elhelyezkedés: Mórahalom Csongrád-Csanád vármegyében, Szegedtől mindössze 20 km-re található, a déli országhatár közelében. A város Hild-díjas település, híres termálfürdőjéről, rendezett utcáiról, valamint kiváló infrastruktúrájáról — ideális választás azoknak, akik a minőségi életstílust keresik. Amennyiben további kérdése van az ingatlannal kapcsolatban ,várom megtisztelő hívását ! IÁ : 19.990.000 Kratochwill Andrea 06209679-219 kratochwill.andrea@gmail.com
https://ingatlanok.hu/elado/telek_foldterulet/morahalom/20-millio-ft;700-negyzetmeter;epitesi-telek-besorolas;nincs-kozmu/11578248