Az értékesítő:
Kratochwill Andrea
+36 20 967 9219

Eladó lakás Szeged, 72 000 000 Ft, 74 négyzetméter

72 000 000 Ft
lakás, 74 négyzetméter
Egész szobák:
3
Ingatlan állapota:
Azonosító:
11598287
Értékesítés típusa:
eladó
Ingatlan típusa:
lakás
Település:
Szeged
Alapterület:
74
Ár:
72 000 000 Ft
Emelet:
2. emelet
Fűtés jellege:
Cirkó
Erkély:
Nincs
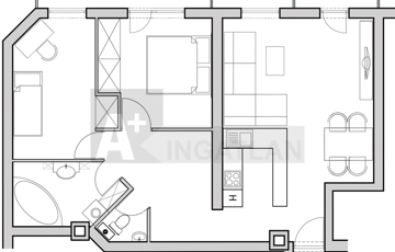
Világos, erkélyes lakás eladó Szeged kedvelt részén. Szegeden, az Árvíz utcában – a Damjanich utca és a Puskás utca közötti szakaszon – eladó egy 2003-ban épült társasház 2. emeletén található, 73,6 m² alapterületű, igen világos lakás. Az ingatlan elrendezése kiváló: nappali amerikai konyhával étkezővel két erkélyes hálószoba, nagy méretű közlekedő, ahol dolgozósarok is könnyedén kialakítható, fürdőszoba és külön WC. A lakás udvari fekvésű, délnyugati tájolásának köszönhetően rendkívül világos, egész évben napfényes. A műanyag nyílászárók és a korszerű fűtés biztosítják az energiatakarékos működést: a fűtés kazánról, radiátoros hőleadással történik. 2024 októberében megtörtént a kémény felújítása és bélelése, valamint a kazán kondenzációs típusra történő cseréje, amely 2027 októberéig garanciális. A társasház udvarában a lakók számára közös kocsibeállási lehetőség biztosított (7 férőhely). Igény esetén a szomszédos épületben garázs bérlésére is van lehetőség. Közös költség: 11 858 Ft, amely tartalmazza a szemétszállítást is. A környék infrastruktúrája kiváló: iskola, óvoda, bevásárlóközpont, valamint tömegközlekedés 5 percen belül elérhető. Ez az ingatlan ideális választás lehet családoknak, pároknak vagy befektetésnek egyaránt – nyugodt környezetben, mégis mindenhez közel. IÁ : 72.000.000.- Kratochwill Andrea ingatlanértékesítő +36 209679219 kratochwill.andrea@gmail.com
https://ingatlanok.hu/elado/lakas/szeged/72-millio-ft;74-negyzetmeter;3-szoba;nincs-megadva-epitesu/11598287